
กลับมาอีกครั้ง หลังจากที่ห่างหายไปนานถึง 5 ปี กับแบรนด์ CENTRIC จาก SC Asset ช่วงสองสามปีหลังมานี้ในวงการอสังหาฯ เรามักจะเห็น SC Asset เปิดตัวโครงการ ระดับ Super Luxury ทำเลใจกลางเมืองอยู่ตลอด ไม่ว่าจะเป็นโครงการ Saladaeng One, 28 Chidlom, และ Beatniq Sukhumvit 32 ซึ่งราคาต่อตารางเมตร สูงขึ้นไปถึง 250,000++ และมาในปีนี้ เปิดตัวกันในไตรมาสแรกเลยกับ โครงการ CENTRIC RATCHAYOTHIN บนทำเล HOT HIT พอๆ กับใจกลางเมือง อย่างทำเลแนวรถไฟฟ้าสายสีเขียวส่วนต่อขยาย หมอชิต-คูคต เรามาค่อยๆทำความรู้จักโครงการนี้กันดีกว่าค่ะ เพราะวันที่ 10-11 มีนาคมนี้ โครงการจะพรีเซลล์ แล้ว ศึกษาข้อมูลของโครงการไว้ก่อนจะทำให้การลงทุนของเพื่อนเป็นต่อนะคะ
CENTRIC RATCHAYOTHIN
“A place for hybrid life style”
เขียนนิยามใหม่ ให้ชีวิตใจกลางเมือง เขื่อมต่อทุกความต้องการ กับรูปแบบไลฟ์สไตล์ให้เป็นหนึ่งเดียว
สำหรับ SC Asset ให้คำนิยาม CENTRIC คือ…
“CENTRIC = CENTER”
เป็น Center ของการใช้ชีวิต การเดินทาง และการอยู่อาศัย สำหรับคนที่ชอบความพร้อมสมบูรณ์แบบ และกำลังตามหา…CENTRIC คือคำตอบ
CENTRIC เป็น premium condo อีกแบรนด์จาก SC Asset ที่กำลังจะกลับมาอีกครั้งบนทำเลแห่งความสะดวกสบายแห่งใหม่ย่าน “รัชโยธิน” ซึ่งเป็นทำเลที่กำลังได้รับความสนใจอย่างมาก ด้วยการมาของรถไฟฟ้า BTS สายสีเขียวส่วนต่อขยาย ซึ่งขณะนี้กำลังอยู่ระหว่างการก่อสร้าง และคาดว่าจะแล้วเสร็จพร้อมๆกับคอนโด
Location
โครงการ CENTRIC RATCHAYOTHIN อยู่ห่างจาก BTS สายสีเขียวรัชโยธินเพียง 150 เมตร ซึ่งห่างจากสถานีลาดพร้าวเพียง 2 สถานี เชื่อมต่อรถไฟฟ้าถึง 3 สายด้วยกัน สายสีเขียวซึ่งอยู่ติดกับโครงการซึ่งอยู่ติดกับโครงการ สายสีน้ำเงิน และสายสีเหลือง สำหรับคนที่ใช้รถ โครงการอยู่บนถนนพหลโยธิน แต่สามารถเชื่อมไปถนนเส้นอื่นๆได้อีกสายเส้นทั้ง รัชดาฯ ลาดพร้าว วิภาวดี และเกษตรนวมินทร์
หากในมุมของ ไลฟ์สไตล์ ย่านรัชโยธินรายล้อมไปด้วย ห้างสรรพสินค้า แหล่ง Hang Out โรงเรียน สถานศึกษาและโรงพยาบาล เรียกว่าเป็นย่านที่พร้อมแล้ว สำหรับการขยายตัวของกรุงเทพมหานครที่กำลังแผ่มาในทำเลที่อุดมสมบูรณ์นี้
- 2 station ถึง หอวัง
- ม.เกษตร / สาธิต เกษตร
- St. Stephen’s International School
[/mpc_icon_column][mpc_icon_column layout=”style_4″ alignment=”left” title=”Hangout & Street Market” mpc_icon__icon=”fa fa-glass” mpc_icon__icon_size=”22″ mpc_icon__border_css=”border-width:2px;border-style:solid;border-radius:45px;”]
- ตลาดรถไฟ
- ตลาดนัดจตุจักร
- Box Space
- Patae’
[/mpc_icon_column][mpc_icon_column layout=”style_4″ alignment=”left” title=”Shopping / Movies” mpc_icon__icon=”fa fa-shopping-bag” mpc_icon__icon_size=”22″ mpc_icon__border_css=”border-width:2px;border-style:solid;border-radius:45px;”]
- 1 นาที ถึง Major Ratchayothin
- 2 station ถึง Central Plaza Lardprao
- 2 station ถึง Union Mall
[/mpc_icon_column][/mpc_connected_icons]
- PTT
- SCB
- Tripetch
- Thai Airways
- SCG
- TMB
[/mpc_icon_column][mpc_icon_column layout=”style_4″ alignment=”left” title=”Green space” mpc_icon__icon=”fa fa-tree” mpc_icon__icon_size=”22″ mpc_icon__border_css=”border-width:2px;border-style:solid;border-radius:45px;”]
- สวนรถไฟ
- สวนจตุจักร
[/mpc_icon_column][mpc_icon_column layout=”style_4″ alignment=”left” title=”Healthcare” mpc_icon__icon=”fa fa-stethoscope” mpc_icon__icon_size=”22″ mpc_icon__border_css=”border-width:2px;border-style:solid;border-radius:45px;”]
- Paolo International Hospital
[/mpc_icon_column][/mpc_connected_icons]
[/ult_hotspot_items][/ult_hotspot][mpc_connected_icons preset=”mpc_preset_17″ layout=”vertical” gap=”27″ lines_number=”1″ lines_style=”dashed” lines_color=”#e0e0e0″ lines_weight=”6″][mpc_icon_column layout=”style_4″ alignment=”left” mpc_icon__icon=”fa fa-train” mpc_icon__icon_size=”22″ mpc_icon__border_css=”border-width:2px;border-style:solid;border-radius:45px;”]ใกล้ BTS สถานีรัชโยธิน เพียง 150 เมตร (BTS สายสีเขียว) ซึ่งเป็นสายสำคัญที่วิ่งตรงเข้าสู่ CBD โดยไม่ต้องเปลี่ยนขบวน และผ่านย่านสำคัญต่างๆ อาทิ จตุจักร อารีย์ อนุสาวรีย์ พญาไท สยาม อโศก พร้อมพงษ์ ทองหล่อ ไปจนถึงบางนา เป็นต้น[/mpc_icon_column][mpc_icon_column layout=”style_4″ alignment=”left” mpc_icon__icon=”fa fa-check” mpc_icon__icon_size=”22″]แวดล้อมด้วยรถไฟฟ้า 3 สาย สายสีเขียว-น้ำเงิน-เหลือง ทำให้ ใกล้ 3 interchange station
[/mpc_icon_column][mpc_icon_column layout=”style_4″ alignment=”left” mpc_icon__icon=”fa fa-check” mpc_icon__icon_size=”22″]ใกล้ transportation hub แห่งใหม่ “Bang Sue Grand Station” ซึ่งเป็นศูนย์กลางคมนาคมระบบราง[/mpc_icon_column][mpc_icon_column layout=”style_4″ alignment=”left” mpc_icon__icon=”fa fa-automobile” mpc_icon__icon_size=”22″ mpc_icon__border_css=”border-style:solid;border-radius:45px;”]สะดวกในการเดินทางทั้งเข้า/ออกเมือง / เชื่อมต่อถนนสายสำคัญถึง 5 สาย ลาดพร้าว รัชดา วิภาวดี พหลโยธิน และเกษตรนวมินทร์
[/mpc_icon_column][mpc_icon_column layout=”style_4″ alignment=”left” mpc_icon__icon=”fa fa-check” mpc_icon__icon_size=”22″]ไม่กี่นาที สามารถเชื่อมต่อสู่ NEW CBD รัชดา-พระราม9 (จากโครงการเลี้ยวซ้ายเข้าถนนรัชดา วิ่งตรงเข้าสู่ new CBD ได้เลย)[/mpc_icon_column][mpc_icon_column layout=”style_4″ alignment=”left” mpc_icon__icon=”fa fa-check” mpc_icon__icon_size=”22″]ใกล้ทางด่วนสำคัญถึง 3 สาย ได้แก่ ดอนเมืองโทลเวย์ / ศรีรัช / ศรีรัช-วงแหวนตะวันตก (เชื่อมต่อฝั่่งธนบุรี)
[/mpc_icon_column][/mpc_connected_icons]
Project Info



Project name : Centric Ratchayothin[su_tabs active=”1″ vertical=”yes”][/su_tabs]
Developer : SC Asset Corporation Public Company Limited[su_tabs active=”1″ vertical=”yes”][/su_tabs]
Project Location : Phahon Yothin , Chan kasem[su_tabs active=”1″ vertical=”yes”][/su_tabs]
Distance from BTS station : Approx. 150 metres* from Ratchayothin BTS Station[su_tabs active=”1″ vertical=”yes”][/su_tabs]
Total Land area : 2 Rais 77.3 Sq.wah[su_tabs active=”1″ vertical=”yes”][/su_tabs]
Building Detail : Residence freehold condominium, 21 Story [su_tabs active=”1″ vertical=”yes”][/su_tabs]
Total number of units : 261 Units[su_tabs active=”1″ vertical=”yes”][/su_tabs]
Parking lot : 121 conventional car parking lots.[su_tabs active=”1″ vertical=”yes”][/su_tabs]
Start Price : 3.7 MB.[su_tabs active=”1″ vertical=”yes”][/su_tabs]
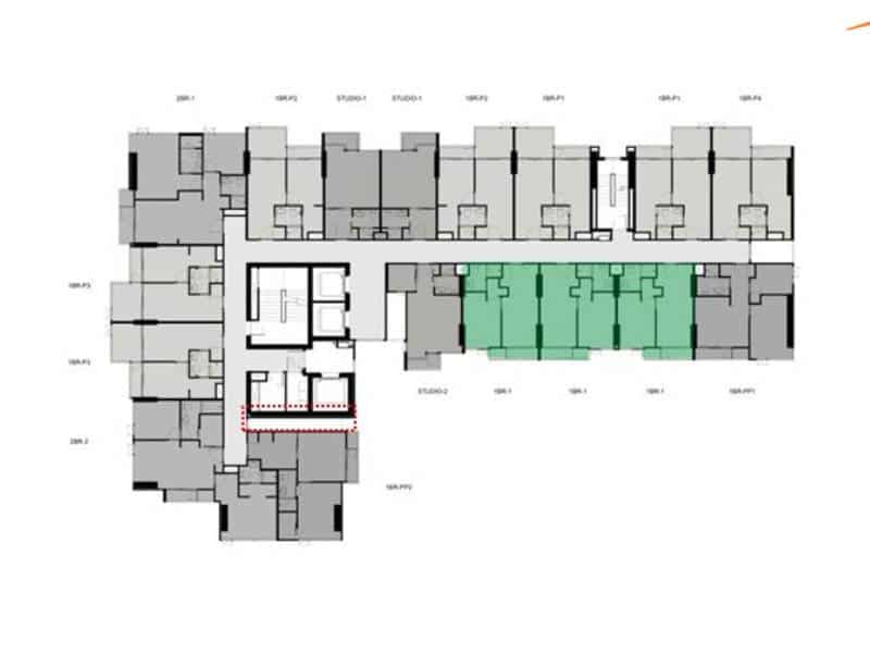
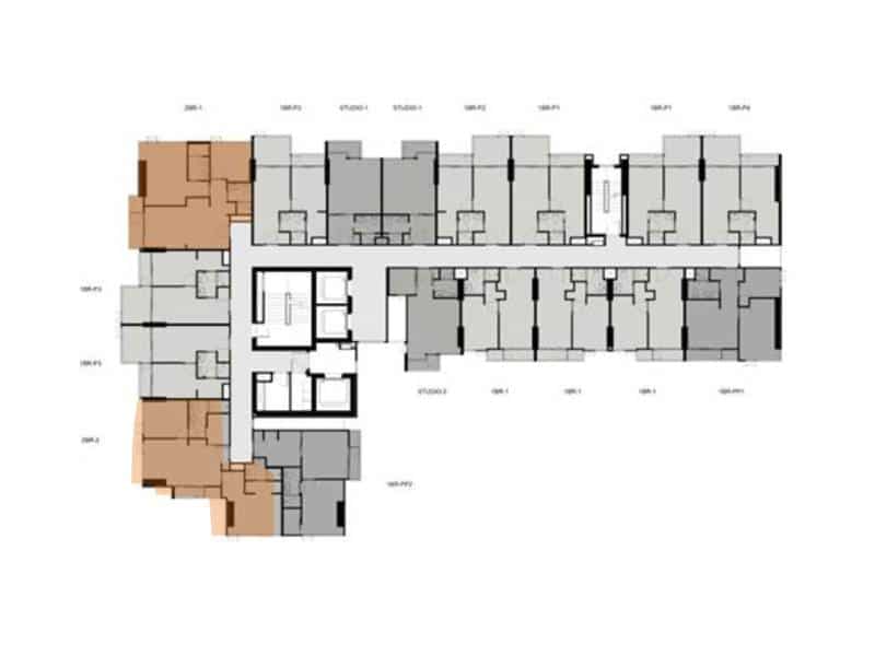
การออกแบบผังอาคารของโครงการ ลดปัญหาหลายๆข้อในการอยู่อาศัย เพิ่มช่องว่างระหว่างโถงลิฟท์กับห้องพักอาศัย แก้ปัญหาความเป็นส่วนตัวและความกังวลจากเสียงลิฟท์ สำหรับยูนิตที่อยู่ใกล้ลิฟท์ ไม่มียูนิตที่ติดห้องขยะ คำนึงถึงการระบายอากาศ และเพิ่มช่องแสงระหว่างโถงทางเดิน นอกจากจะได้บรรยากาศที่ดีแล้วยังช่วยประหยัดไฟ ประหยัดพลังงานอีกด้วย ให้ความเป็นส่วนตัว ประตูห้องของทุกยูนิตไม่ตรงกันและ มีเพียง 11 ห้องต่อ 1 ชั้น สำหรับชั้นที่อยู่ติดกับสวน (5 Floor) มียูนิตที่เพดานสูงถึง 6 เมตร เพื่อให้รับวิวสวนได้สุดลูกหูลูกตา

แบบห้องมีทั้งหมด 4 Type 8 Layout ซึ่งแต่ละแบบแต่ละ layout มี จุดเด่นและเอกลักษณ์ของตัวเอง โครงการเลือกทำ Type ห้องให้หลากหลาย เพื่อให้ตอบโจทย์และเหมาะสมกับไลฟ์สไตล์ของผู้อาศัยที่แตกต่างกัน เพดานห้องสูง 3 เมตร และได้ห้องแบบ Fully Furnished ในราคาเฉลี่ยประมาณ 165,000 บาท / ตารางเมตร
[/mpc_icon_column]

[/mpc_icon_column]



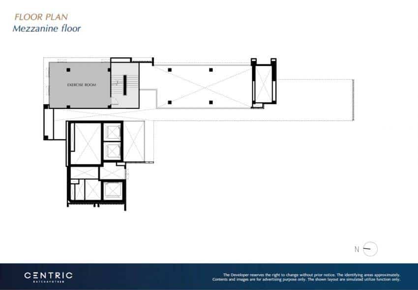
Facility
พื้นที่ส่วนกลางหลากหลายฟังก์ชั่นเพื่อรองรับความต้องการและกิจกรรมทางไลฟ์สไตล์ที่ต่างกันของลูกบ้าน ตอบทุกโหมดของการใช้ชีวิต ทั้ง Active Relax และ Working มีพื้นที่ส่วนกลางทั้งหมด 3 ชั้น คือชั้น G, ชั้น 4 และ Roof Top ชั้น 21
ชั้น G Lobby สูงโปร่งเพดานสูงถึง 5 เมตร เชื่อมกับบริเวณ Semi Outdoor Lobby ทำให้ความรู้ใกล้ชิดธรรมชาติ ดีไซน์ภายใต้บรรยากาศที่อบอุ่นและสง่างาม
ขึ้นมาที่ชั้น 4 Triple Volume Co-Working Space ภายในเป็นพื้นที่ส่วนกลาง 3 ชั้นชั้นล่างจะเชื่อมกับ Park เป็นพื้นที่สีเขียวขนาดใหญ่ที่โครงการมอบให้แก่ลูกบ้าน
และชั้น 21 จะเป็น Active Facility ฟิตเนสภายในห้องกระจกรับวิวแบบ Panoramic พร้อมสระว่ายน้ำยาว 25 เมตรและ Jacuzzi

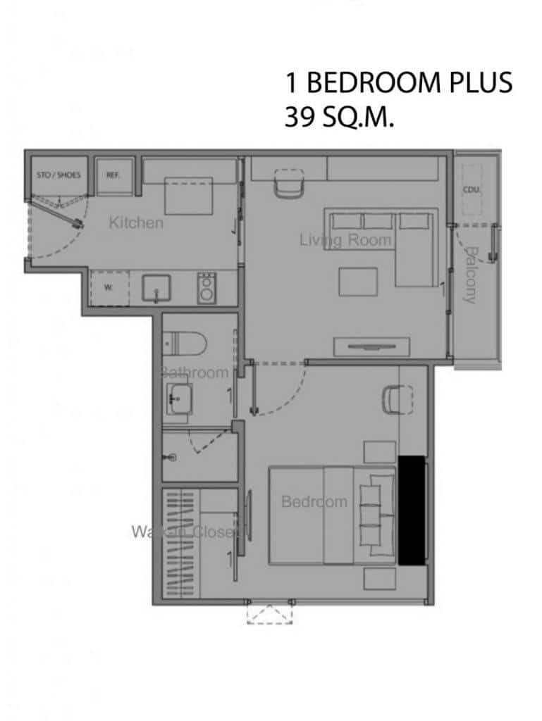
1 Bedroom 34.50 sq.m.
ห้องตัวอย่าง ของโครงการมี 2 Type ด้วยกันค่ะ แบบแรกเป็น Type 1 Bedroom Plus 34.50 ตารางเมตรค่ะ Layout ของห้องวางฟังก์ชั่นดีมาก ตอบโจทย์การอยู่อาศัยครบทุกมุม ยิ่งโดยเฉพาะคนที่ให้ความสำคัญเรื่องสุนทรียภาพในการอยู่อาศัย ทั้งห้องนอน ห้องเอนกประสงค์ และห้องนั่งเล่น มีมุมที่อยู่ติดกับระเบียง สามารถชมวิว รับบรรยากาศ และสุนทรียภาพได้เต็มที่ ห้องน้ำเข้าได้ทั้งสองฝั่ง แบ่งความเป็นส่วนตัว ห้องเอนกประสงค์ใช้งานได้จริง กว้างพอที่จะทำเป็นห้องนอนห้องที่2ได้ และด้วยความสูงจากพื้นถึงเพดาน 3 เมตร ทำให้ห้องดูกว้าง ไม่รู้สึกอึดอัด

เปิดประตูห้องเข้ามาส่วนด้านหน้าเป็น Pantry ครัว มองตรงยาวไปเป็นห้องนั่งเล่นเชื่อมกับห้องอเนกประสงค์ อยู่ติดกับกระจกบานใหญ่ Take View ได้เต็มที่

Pantry เหมาะสำหรับคนที่ไม่ทำอาหารทานเองที่บ้านเป็นหลัก มีเตาไฟฟ้าเซรามิกสองหัว พร้อมเครื่องดูดควัน ของ MEX อ่างล้างจานแบบ 1 หลุมพร้อมก๊อกเปิด-ปิดแบบคันโยก



ชั้นและตู้เก็บของโครงการบิ้วท์อินมาให้ทั้งหมด ยกเว้นชั้นที่ไม่มีหน้าบานหลังตู้เย็น ตู้เก็บรองเท้าหน้าห้องก็ได้มาด้วยเช่นกัน

ห้องน้ำเข้าได้จาก 2 ทางคือบริเวณครัว และอีกฝั่งจะเชื่อมกับ บริเวณ Dressing Area ซึ่งอยู่ในห้องนอน

ห้องน้ำทั้งหมดได้สุขภัณฑ์ จาก American Standard หรือเทียบเท่า อ่างล่างหน้า พร้อมตู้เก็บของ สุขภัณฑ์ และกระจกนิรภัยกั้นส่วนอาบน้ำ

กลับมาที่ห้องครัว ติดกับเคาน์เตอร์ Top หินสังเคราะห์สีขาวของครัว จะเป็นพื้นที่ส่วนรับประทานอาหารนั่งได้ 2 คน โต๊ะที่โครงการให้มาเป็นโต๊ะแบบพับเก็บได้ ทำให้ประหยัดพื้นที่ได้อีกมาก เมื่อได้ใช้งานฟังก์ชั่นนี้

ต่อเข้ามาเป็น Living Area ได้ชุดโฟซา นั่งได้ประมาณ 2 คนและชั้นวางทีวี ระยะห่างผนังถึงผนัง ประมาณ 2.5 เมตร เหมาะกับการซื้อทีวีประมาณ 42 นิ้วซึ่งทำให้ระยะห่างสายตาพอดีและขนาดเหมาะสมกับชั้นวางที่โครงการเตรียมไว้ให้



จากห้องนั่งเล่นจะต่อกับห้องเอนกประสงค์ที่ถูกกั้นด้วย กระจกบานเลื่อน 3 ตอน จากภาพห้องตัวอย่างโครงการ บิ้วท์อินเฟอร์นิเจอร์ไว้เป็นห้องทำงาน ได้เฟอร์นเจอร์ตามนี้เลยค่ะ มี Sofa, เก้าอี้, โต๊ะทำงาน, เก้าอี้, ชั้นวางของ ผนังเป็นปูนฉาบเรียบทาสีขาวพร้อมสำหรับติดวอลเปเปอร์ ซึ่งเพื่อนๆ อาจจะทำให้ปรับเปลี่ยนห้องนี้ได้ตามการใช้งานต่างๆ ถ้าป็นห้องนอนเล็ก พื้นที่ก็ใหญ่พอสามารถวางเตียง 3.5 ฟุตได้ค่ะ

เป็นห้องนอนเล็ก วางเตียง 3.5 ฟุต และตู้เสื้อผ้าอีก 1 หลัง หรือจะเป็นห้องสำหรับเก็บกระเป๋ารองเท้าแบรนด์เนมที่เป็นของสะสมทั้งหมด หรือจะขยายพื้นที่ห้องเล่นให้กว้างขึ้น ทำเป็นมุมสำหรับดูหนังโดยเฉพาะก็ยังได้
ซึ่งห้องเอนกประสงค์นี้จะสามารถออกไปทางระเบียง ที่ทางออกหลักอยู่ติดกับห้องนอนได้ด้วย


ห้องนอนเข้าจากห้องนั่งเล่น ได้ฐานเตียงใหญ่ 5 ฟุต บริเวณหัวเตียงโครงการเตรียมปลั๊กไฟ ทั้งแบบธรรมดาและ หัว USB ตอบโจทย์คนรุ่นใหม่ในทุกๆมุมการใช้ชีวิต


ด้านนึงของเตียง จะสามารถออกไประเบียงได้ ด้วยประตูกระจกบานเลื่อน 3 ตอน ขอบ Powder Code จับแล้วไม่เป็นรอยนิ้วมือค่ะ

อีกฝั่งของห้องนอน เป็นทางเดินเชื่อมไปห้องน้ำ ได้ตู้เสื้อผ้าหลังใหญ่ 3 หลัง บิ้วท์อิน สูง 2.4 เมตร เว้นช่องหลังตู้ไว้ สำหรับใส่กระเป๋าเดินทาง หรือของชิ้นใหญ่ๆ ได้

หน้าบานเป็นลายไม้สีอ่อน ซึ่งห้องตัวอย่างบิ้วท์อินหน้าบานให้เป็นกระจกเงา ทำให้ดูครบฟังก์ชั่นการใช้งาน แต่งตัวสะดวก และยังทำให้ห้องกว้างขึ้นด้วย

ยังไม่หมดค่ะ หน้าทางเข้าห้องน้ำ ยังมีบิ้วท์อินชั้น และลิ้นชักเล็กๆ ให้เก็บเครื่องประดับและชุดชั้นในถุงเท้าได้อีกด้วยค่ะ

เป็นห้องที่ต้องยกให้จริงๆ เรื่องการฟังก์ชั่น Layout ห้องให้ตอบโจทย์การใช้งานในทุกๆตารางเมตรของพื้นที่ยูนิต
2 Bedroom 55 sq.m.
ต่อกันที่ห้อง 2 ห้องนอน ห้องตัวอย่างทำไว้ที่ขนาด 54.79 ตารางเมตร ยังเป็นห้องรูปแบบครัวเปิดเน้นการให้สุนทรียภาพในการอยู่อาศัย Take View ได้เต็มสายตาด้วยกระจกบานสูง วางห้องนอนเล็กและห้องนอนใหญ่อยู่ติดกัน แบ่งความเป็นสัดส่วน ระหว่าง Private Area พื้นที่ห้องนอน และ Public Area ที่เป็นห้องนั่งเล่นและห้องครัว ออกจากกันอย่างเป็นสัดส่วน


เปิดประตูเข้าห้อง จะเห็นโซนรับประทานอาหาร ยาวไปถึง Living Area ที่อยู่ติดกับระเบียง กั้นด้วยกระจกบานสูงให้คุณชมทัศนียภาพได้กว้างสุดสายตา

Pantry ครัวใหญ่กว่าห้อง Type ที่แล้ว โครงการให้เครื่องใช้ มาพร้อมห้อง Fully Furnish ได้ไมโครเวฟ เครื่องซักผ้า ตู้เย็น ซิงค์ล้างจานและเตาไฟฟ้า สเปคเดียวกับห้อง Type ที่แล้ว

ถัดจากครัวและพื้นที่รับประทานอาหาร จะเป็นบริเวณ Living Area ค่ะ




ระเบียงอยู่ต่อกับห้องนั่งเล่น กั้นพื้นที่ส่วนหนึ่งสำหรับวางคอมเพรสเซอร์แอร์ ทั้ง 3 ตัว


เมื่อมองย้อนจากระเบียงกลับเข้ามาด้านใน จะเห็นความโปร่งของห้อง อยู่สบายมากจริงๆ ด้วยความสูงจากพื้นถึงเพดาน 3 เมตร

กลับมาทางที่จะแยกไปเชื่อมกับห้องนอนและห้องน้ำ ได้ตู้บิ้วท์อิน สำหรับเก็บของ สามตอนใหญ่เกือบเต็ม
ผนังเว้นช่องให้ติดแอร์แบบ Wall Type ของไดกิ้น(หรือเทียบเท่า) สำหรับห้อง 2 ห้องนอนได้แอร์ทั้งหมด 3 ตัวค่ะ

มองตรงเป็นห้องนอนเล็ก ขวามือเป็นห้องน้ำและ ด้านซ้ายเป็นห้องนอน Master Bedroom

ห้องน้ำสำหรับแขกและของห้องนอนเล็ก ใช้ร่วมกัน สเปคสุขภัณฑ์ ได้เหมือนห้องแบบที่แล้ว


ห้องนอนเล็กพอดีวางเตียง ขนาด 3.5 ฟุต 1 หลัง และได้บิ้วท์อิน ตู้เสื้อผ้า 3 ตอนหน้าบานลายไม้


ต่อกันที่ Master Bedroom โครงการติดกระจกผนังเกือบทั้งหมดไว้เป็นไอเดียให้ห้องที่กว้างอยู่แล้ว ดูกว้างขึ้นไปอีก สำหรับห้องจริงที่ได้จะเป็นผนังฉาบเรียบทาสีขาว พร้อมสำหรับติดวอลเปเปอร์

เดินเข้า Master Bedroom จะผ่านห้องน้ำในตัวก่อน สเปคห้องน้ำเหมือนกันทุกห้องค่ะ

เดินถัดเข้ามาข้างใน โครงการบิ้วท์อินตู้เสื้อผ้าทั้งหมด 6 ตอน สูงใหญ่เต็มผนัง ทางเดินปลายเตียงกว้างมากที่เดียวค่ะ เดินได้สบายๆเลย

ห้องนอนใหญ่ วางเตียง 5 ฟุตได้ฐานรองเตียงที่โครงการเตรียมให้ไว้แล้ว ยังเหลือพื้นที่ข้างเตียงอีกเยอะมากพอที่จะทำเป็นพื้นที่สำหรับทำงาน




จริงๆแล้วเพื่อนๆอาจบิ้วท์อินมุมนี้เป็นการใช้งานอื่นๆได้อีกเช่น บิ้วท์อินเป็น Daybed ตัวยาว เพิ่มที่นั่งเล่นนอนเล่น อ่านหนังสือทำงานอดิเรกอยู่ติดกับกระจกมองวิวสวน วิวเมืองได้ทั้งวัน



สำหรับเพื่อนๆที่สนใจ และกำลังมองหาคอนโดทำเลดี คุณภาพดี ราคาน่าคบ ชอบความพร้อมสมบูรณ์แบบ ต้องรีบจับจองโครงการ CENTRIC RATCHAYOTHIN สำหรับใครที่พลาดรอบ Online Speed Booking สามารถไปรอบ Presale ได้ 10-11 มีนาคม นี้ ลงทะเบียนรับสิทธิพิเศษสูงสุด 250,000 บาท* คลิก! https://goo.gl/bQ5kMc เริ่ม 3.7 ล้าน ห้องแบบ Fully Furnish เริ่ม 3.7 ล้านบาท* สอบถามรายละเอียดเพิ่มเติมโทร 1749 หรือ คลิก



























